Italiano
499.000 €

Villa Singola Busnago (MB), Via dei Gelsi 18

Villa in vendita • Busnago - via Dei Gelsi, 18
In vendita splendida villa singola immersa in una delle zone residenziali più richieste di Busnago (MB), una soluzione unica per chi cerca comfort, spazi generosi e una posizione tranquilla ma strategica.
Posizione e servizi
L’immobile è situato in un contesto residenziale ben servito, a breve distanza dal centro del paese, con facile accesso a negozi, supermercati e servizi quotidiani. Nelle vicinanze si trova anche il Centro Commerciale Globo, punto di riferimento per shopping e ristorazione con ampia offerta di negozi e aree food.
La posizione è ottimale per chi desidera un rapido collegamento con i principali centri urbani: Milano è raggiungibile in circa 30 minuti d’auto, mentre servizi di trasporto pubblico collegano Busnago ai comuni limitrofi e a Monza.

Caratteristiche dell’immobile
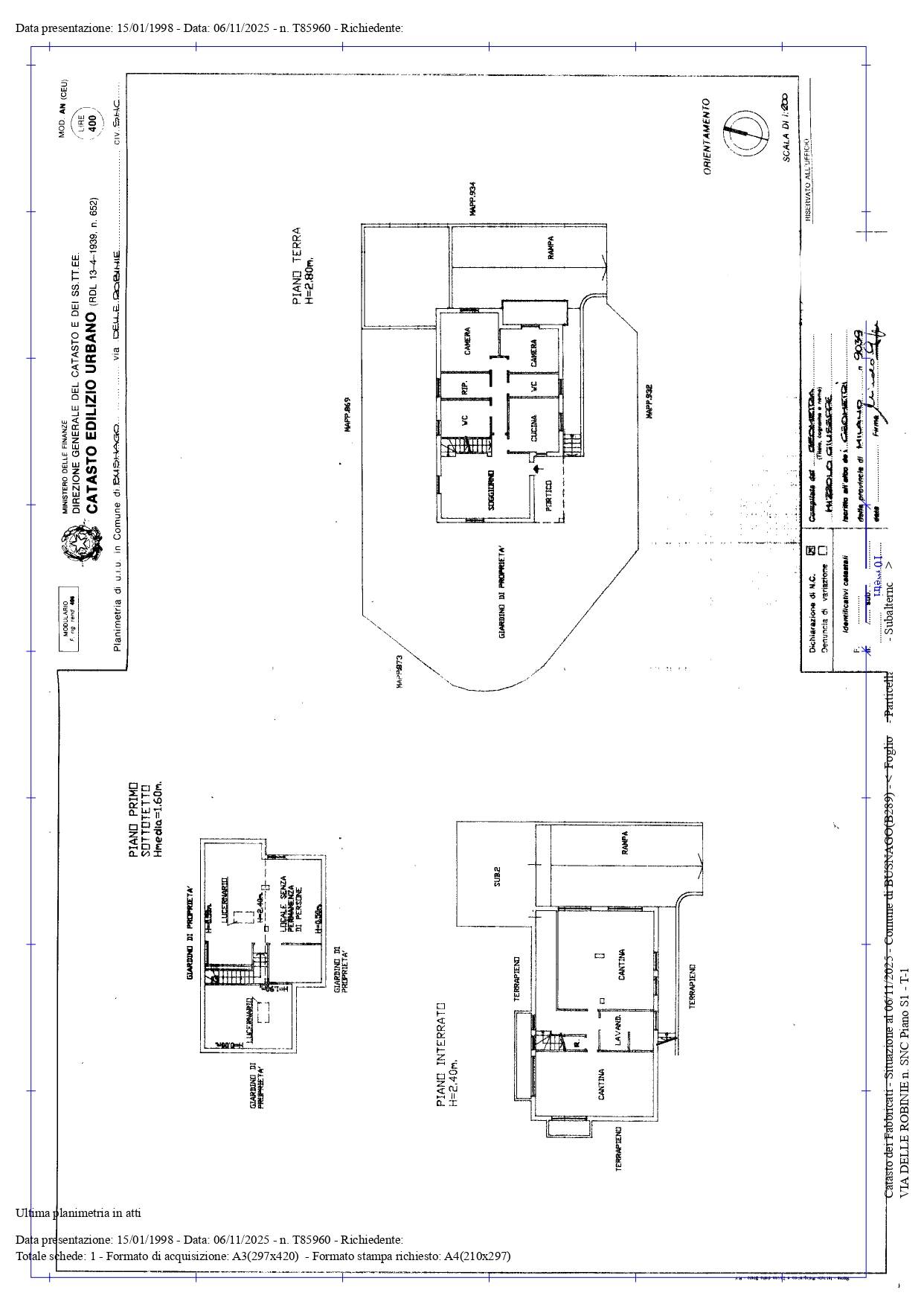
Questa villa singola di pregio si sviluppa su più livelli ed è caratterizzata da spazi interni ed esterni molto fruibili:
✅ Ingresso indipendente con giardino privato e ampi portici sfruttabili, ideali per cene all’aperto o momenti di relax;
✅ Ampio soggiorno luminoso;
✅ Cucina abitabile con spazio dedicato;
✅ Camera matrimoniale con comoda cabina armadio / ripostiglio;
✅ Cameretta con accesso diretto al balcone;
✅ Doppi servizi, entrambi finestrati, per massimo comfort;
✅ Stupenda taverna suddivisa in due ambienti ampi, perfetti come spazio hobby o area ricreativa oltre lavanderia e ripostiglio;
✅ Accesso al box doppio direttamente dalla taverna oltre a posto auto esterno;
✅ Mansarda open‑space con ripostiglio.

Accessori
impianto di allarme
impianto di irrigazione
serramenti e persiane recentemente sostituiti
caldaia NUOVA

Alla IMMOBILIARE DUEA troverai un team giovane, dinamico e appassionato.
Laura e Jasmine sono sempre pronte ad ascoltarti e a guidarti in ogni fase della compravendita o locazione, mentre Andrea, il titolare, saprà accompagnarti nella scelta della casa dei tuoi sogni.

Siamo associati F.I.A.I.P., la principale Federazione Italiana di Agenti Immobiliari Professionali. Dal 2019 utilizziamo il formulario ufficiale UNA FIAIP, garanzia di trasparenza e tutela per ogni proposta di acquisto, incarico o locazione.

La nostra presenza costante sul territorio ci ha permesso di costruire una rete solida di collaborazioni con notai, consulenti bancari, architetti, geometri e imprese edili, per offrirti un servizio completo e altamente competente.

Chiedi a chi già ci ha scelto!
La tua nuova casa ti aspetta, e noi siamo pronti ad accompagnarti passo dopo passo.
Caratteristiche principali
Codice
A1482_c
Città
Busnago
Categoria
Villa
Prezzo
499.000 €
Locali
5
Camere
2
Bagni
3
Mq
171
Box
2
Posti auto
1
Balconi
1
Terrazzi
1
Piano
Terra
Classe energetica
D
205,73
Stato Immobile
Buono
Grado
Signorile
Lati Liberi
4
Giardino
Privato
Arredi
Possibilità
Tipo Soggiorno
Soggiorno
Tipo Cucina
Abitabile
Riscaldamento
Autonomo
Tipo Riscaldam.
Caldaia a Condensazione
Tipo Impianto
Radiatori
Fonte Energetica
Metano
Acqua Calda
Autonoma
Raffrescamento
Split
Infissi
Legno Doppio Vetro
Serramenti
Nuovo
Persiana
Persiana Metallo
Pavim. Giorno
Ceramica
Pavim. Notte
Ceramica
Pavim. Cucina
Ceramica
Pavim. Bagno
Ceramica
Destinato a residenti
Si
Impianto d’irrigazione
Si
VMC
No

Accessori: Antifurto, Aria Condizionata, Cancello Elettrico, Doppi Vetri, Impianto Satellitare, Lavanderia, Porta Blindata, Ripostiglio

Mappa
via Dei Gelsi 18, Busnago (MB)
Condividi su
Cookie preference