QUADRILOCALE con taverna e box doppio
4 o più locali in vendita • Trezzano Rosa - via giovanni pascoli
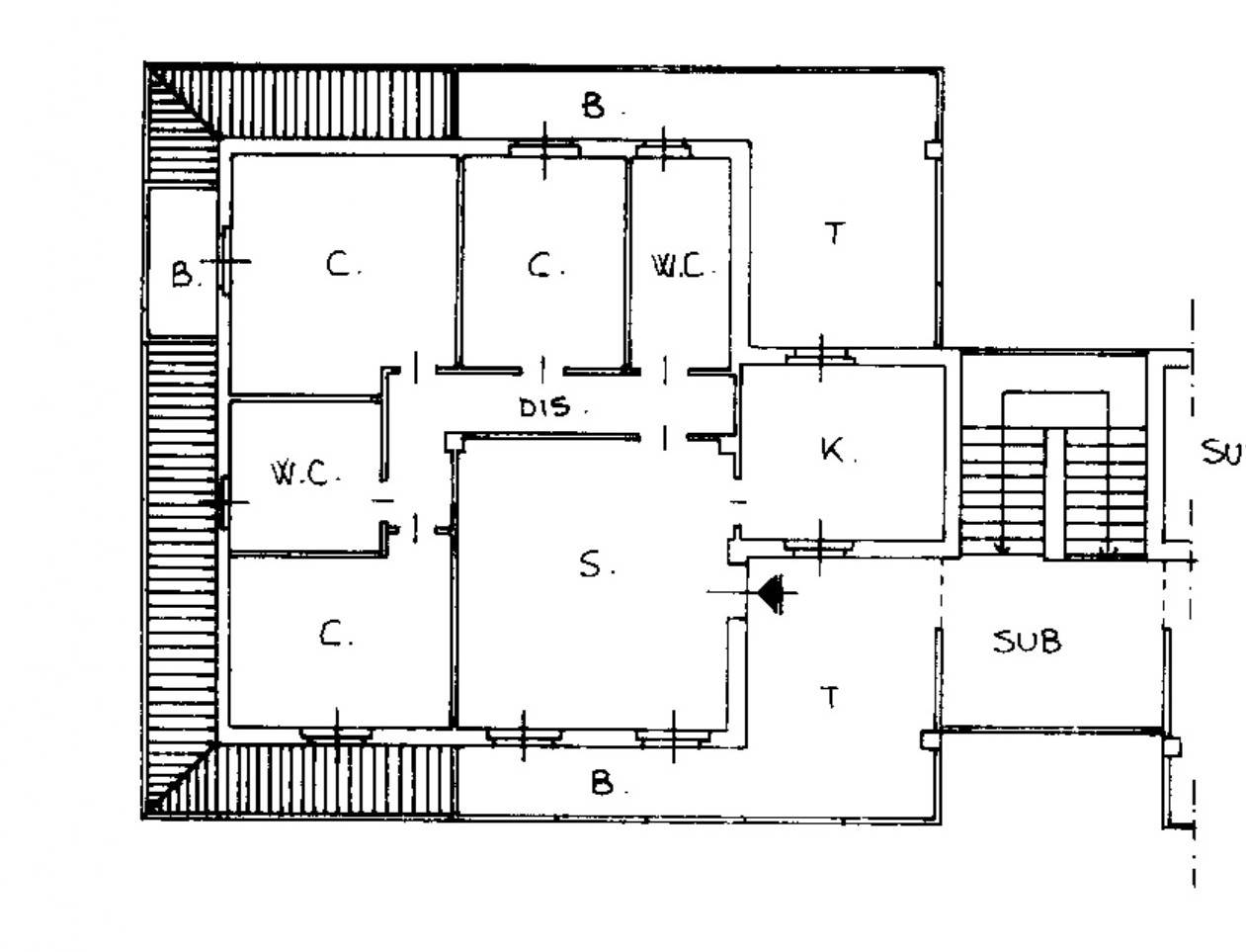
In palazzina di 4 appartamenti, proponiamo al 1 ed ultimo piano, appartamento composto da ingresso, soggiorno con soppalco, cucina abitabile con accesso al terrazzino, 3 camere da letto, doppio servizio e altri due balconi.
Completano la proprietà un'ampia taverna e box doppio compreso nel prezzo.
Libero subito.
Giovani, dinamici e con tanta voglia di fare, ecco chi troverai aprendo la porta di IMMOBILIARE DUEA.
Laura, la segretaria, è sempre pronta ad ascoltare i tuoi bisogni.
Andrea, il titolare, a trovare le casa dei tuoi sogni.
Grazie alla nostra associazione di categoria F.I.A.I.P. siamo sempre aggiornati circa le nuove normative ed è anche per questo che dal 2019 utilizziamo il nuovo formulario UNA FIAIP per la modulistica di proposte di acquisto / locazioni, incarico e altri, per tutelare al meglio i nostri clienti.
La costante presenza sul mercato ha fatto sì di instaurare diverse collaborazioni con notai, consulenti bancari, architetti, geometri, imprese edili per poter affrontare ogni passo con le giuste competenze.
Chiedi a chi ha già usufruito del nostro servizio!
Caratteristiche principali
Infissi
Legno Doppio Vetro
Accesso interno disabili
Non accessibile
Accessori: Cancello Elettrico, Doppi Vetri, Porta Blindata, Ripostiglio
Mappa
via giovanni pascoli , Trezzano Rosa (MI)