Italiano
900 € / mese

Appartamento trilocale piano terra

3 locali in affitto • Gessate - via Badia
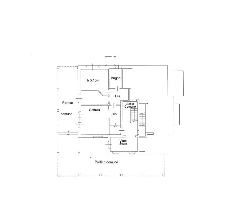
Gessate, in complesso familiare, affittasi ampio appartamento posto al piano terra, composto da ambiente unico di cucina e soggiorno, camera matrimoniale, cameretta e servizio.
Cantina compresa nel prezzo.
Portico e giardino in comune.
Posti auto non privati, disponibili nel complesso.
Libero subito.
Animali non ammessi.
Affitto per un massimo di 3 persone.
Richiesti due contratti a tempo indeterminato.

Giovani, dinamici e con tanta voglia di fare, ecco chi troverai aprendo la porta di IMMOBILIARE DUEA.
Laura, la segretaria, è sempre pronta ad ascoltare i tuoi bisogni.
Andrea, il titolare, a trovare le casa dei tuoi sogni.
Grazie alla nostra associazione di categoria F.I.A.I.P. siamo sempre aggiornati circa le nuove normative ed è anche per questo che dal 2019 utilizziamo il nuovo formulario UNA FIAIP per la modulistica di proposte di acquisto / locazioni, incarico e altri, per tutelare al meglio i nostri clienti.

La costante presenza sul mercato ha fatto sì di instaurare diverse collaborazioni con notai, consulenti bancari, architetti, geometri, imprese edili per poter affrontare ogni passo con le giuste competenze.

Chiedi a chi ha già usufruito del nostro servizio!
Caratteristiche principali
Codice
A1450
Città
Gessate
Categoria
3 locali
Prezzo
900 € / mese
Spese condominiali
600 € / anno
Locali
3
Camere
2
Bagni
1
Mq
81
Posti auto
1
Piano
Terra
Classe energetica
G
Life Style
Friendly
Stato Immobile
Buono
Grado
Medio
Panorama
Vista Aperta
Lati Liberi
2
Giardino
Comune
Arredi
Arredato
Tipo Soggiorno
Soggiorno
Tipo Cucina
A Vista
Riscaldamento
Autonomo
Tipo Riscaldam.
Caldaia
Tipo Impianto
Radiatori
Fonte Energetica
Metano
Acqua Calda
Autonoma
Raffrescamento
No
Infissi
Legno
Serramenti
Buono
Persiana
Tapparella PVC
Pavim. Giorno
Ceramica
Pavim. Notte
Ceramica
Pavim. Cucina
Ceramica
Pavim. Bagno
Ceramica
Cauzione
Tre Mesi
Canoni Anticipati
Un Mese
Tipo Contratto
4+4 Anni
Accesso Disabili
Nessuna Barriera
Accesso interno disabili
Pieno accesso
Tipo Registr.
Cedolare Secca

Accessori: Cancello Elettrico, Doppi Vetri, Porta Blindata

Mappa
via Badia , Gessate (MI)
Condividi su
Cookie preference